PWS 3102 230V Luft/Wasser Wärmetauscher
AC 230 V / 230 V1~,
Der Einsatz von Pfannenberg Luft-/Wasser-Wärmetauschern eignet sich besonders dort, wo hohe Umgebungstemperaturen herrschen oder sich die Atmosphäre als besonders ölig oder aggressiv erweist. Der Hauptvorteil liegt in ihrem wartungsfreien Betrieb und einer extrem geringen Geräuschemission. Ideale Einsatzgebiete sind dort gegeben, wo Maschinen bereits mit temperiertem Wasser gekühlt werden. Vorteile der Serie auf einen Blick: -Systemkompatibel mit Rückkühlanlagen -Integrierbar in bestehende Kühlkreisläufe -Integrierter Thermostat und Magnetventil für energieeffiziente Temperaturregelung -Hohe Luft- und Kühlleistung -Entstehende Verlustleistung wird nicht in den Raum abgegeben -Integrierte Temperaturüberwachung mit Alarmkontakt -Einsetzbar unter aggressiven Umgebungsbedingungen -Unabhängig von der Umgebungstemperatur am Aufstellort -Kompakte Bauweise -Dichtung erfordert kein aufwendiges Nacharbeiten des Montageausschnittes -Wartungsfreiheit
Technische Daten
- Nennspannung V ±10 %
- AC 230 V / 230 V1~
- Nennfrequenz Hz ±1 %
- 50 Hz | 60 Hz
- Kälteleistung W bei l/h
- 1100 W @ 450 l/h
- Stromaufnahme (W10/A35) A
- 0,29 A
- Einschaltstrom (W10/A35) A
- 0,35 A
- Art der Sicherung | Absicherung
- CC | 0,5 A
- Anschlussart (elektrisch)
- Klemmleiste
- Anschlussart (hydraulisch)
- 1/2 inch - Einsteckverschraubung
- Gewicht (ohne Verpackung) kg
- 15 kg
- Umgebungstemp. °C
- +2 °C ... +65 °C
- Regelbereich (einstellbar) °C
- +10 °C ... +45 °C
- Wasservorlauftemperatur °C
- > +1 °C ... +35 °C
- Zulässiger Betriebsdruck bar
- max. 10 bar
- Kondensatabscheidung
- Kondensatablauf
- Schutzart nach EN 60529 gegenüber Schaltschrankinnerem
- IP 34
- Schutzart nach NEMA gegenüber Schaltschrankinnerem
- 3R/4/4X
- Bauweise Gehäuse
- Edelstahl 304
- Bauweise Haube
- Edelstahl 304
- Bauweise Wärmetauscher
- Kupferrohr und Aluminiumlamelle
- Farbe
- 304 SS
- Montageposition
- Tür- oder Seitenanbau
- Abmessungen (H | B | T) mm
- 814 mm | 401 mm | 159 mm
- ETIM-Class
- EC002515
- Nennspannung V ±10 %
- AC 230 V / 230 V1~
- Nennfrequenz Hz ±1 %
- 50 Hz | 60 Hz
- Kälteleistung @ bei Durchflußmenge (W10/A35)
- 3753 BTU @ 450 l/h
- Stromaufnahme (W10/A35)
- 0.29 A
- Einschaltstrom (W10/A35)
- 0.35 A
- Art der Sicherung | Absicherung
- CC | 0,5 A
- Anschlussart (elektrisch)
- Klemmleiste
- Anschlussart (hydraulisch)
- 1/2 inch - Einsteckverschraubung
- Gewicht (ohne Verpackung)
- 33 lbs
- Umgebungstemperaturbereich
- +36 °F ... +149 °F
- Regelbereich (einstellbar)
- +50 °F ... +113 °F
- Wasservorlauftemperatur
- > +34 °F ... +95 °F
- Zulässiger Betriebsdruck
- max. 145 psi
- Kondensatabscheidung
- Kondensatablauf
- Schutzart nach EN 60529 gegenüber Schaltschrankinnerem
- IP 34
- Schutzart nach NEMA gegenüber Schaltschrankinnerem
- 3R/4/4X
- Bauweise Gehäuse
- Edelstahl 304
- Bauweise Haube
- Edelstahl 304
- Bauweise Wärmetauscher
- Kupferrohr und Aluminiumlamelle
- Farbe
- 304 SS
- Montageposition
- Tür- oder Seitenanbau
- Abmessungen (H | B | T)
- 32.05 in. | 15.8 in. | 6.28 in.
- ETIM-Class
- EC002515
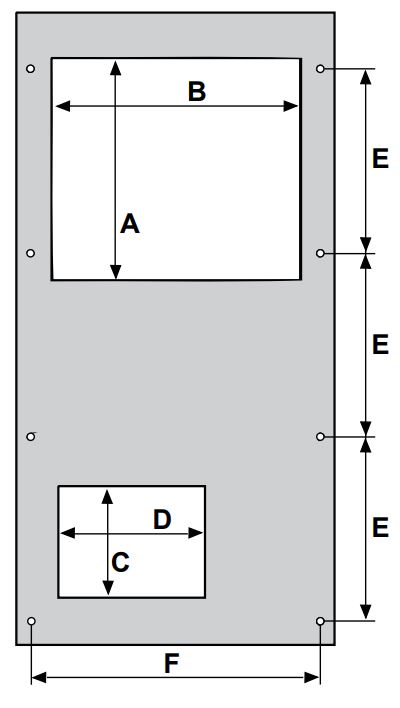
Abbildungen
- A
- 300 mm
- B
- 310 mm
- C
- 130 mm
- D
- 203,2 mm
- E
- 228,6 mm
- F
- 360 mm
- X
- 401 mm
- Y
- 814 mm
- Z
- 159 mm
- A
- 11,8 in
- B
- 12,21 in
- C
- 5,12 in
- D
- 8 in
- E
- 9 in
- F
- 14,17 in
- X
- 15,79 in
- Y
- 32,05 in
- Z
- 6,26 in
Befestigungsbohrungen Ø 8mm
Diagramme
Downloads
| Description | Language | Type | Size | Link |
|---|---|---|---|---|
| 3D-model_STEP_PWS3102 | Deutsch | ZIP | 5.02 MB | Download |
| UL_Certificate_PWS_3xxx_PWS_7xxx | Englisch | 229.67 KB | Download | |
| PWS-Series-Manual-04-22 | Englisch | 5.16 MB | Download | |
| Drawing_PWS_3102 | Englisch | tables.type.file_pdf | 315 KB | Download |
| 3D-model_STEP_PWS3102 | Englisch | ZIP | 5.02 MB | Download |
| Drawing_DXF_PWS_3102 | Englisch | DXF | 344.48 KB | Download |
| EAC_Certificate_PW | Deutsch | 1.64 MB | Download | |
| Technical_Data_PWS_3102 | Englisch | 388.45 KB | Download | |
| UL_Certificate_PWS_3xxx_PWS_7xxx | Englisch | 229.67 KB | Download | |
| EAC_Certificate_PW | Englisch | 1.64 MB | Download | |
| EAC_Certificate_PW | Englisch | 1.64 MB | Download | |
| UL_Certificate_PWS_3xxx_PWS_7xxx | Deutsch | 229.67 KB | Download | |
| Product_Sheet_EN_PWS_3102 | Englisch | 775.84 KB | Download | |
| 3D-model_STEP_PWS3102 | Englisch | STEP | 5.02 MB | Download |
| 3D-model_STEP_PWS3102 | Englisch | ZIP | 5.02 MB | Download |
| Product_Sheet_DE_PWS_3102 | Deutsch | 777.16 KB | Download | |
| PWS-Series-Manual-04-22 | Deutsch | 5.16 MB | Download | |
| PWS-Series-Manual-04-22 | Englisch | 5.16 MB | Download |